× About
Works
Contact
Instagram

Works

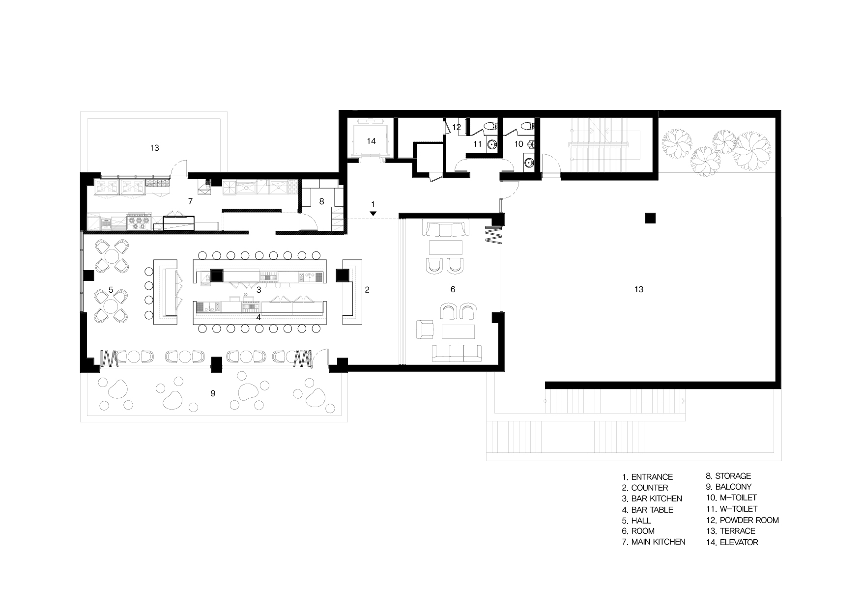
Glimmer
Completed : January 2020
Location : 4F, 315-74, SeongSu-dong, Seongdong-gu, Seoul, Korea
Materials : Tile, Concrete over Paint, Exposure over Paint
Use : Bar
Area : 175m2
Client : Glimmer
List  │  Top

 

ⓒ 2020 gongsangplanet.inc.